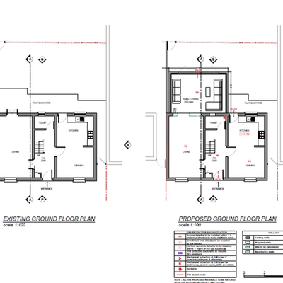
The construction of a 4m × 5.75m conservatory at the rear of the dwelling, designed as an extension to the ground floor living area. The conservatory will feature a uPVC window to enhance natural light and create an inviting family living space.
The proposed conservatory is designed to integrate seamlessly with the existing dwelling, ensuring both structural continuity and ease of movement throughout the home. The rear wall of the living room will be opened to accommodate a 3.0-metre-wide bi-fold glazed doorway, establishing a fluid transition between the existing interior and the new conservatory space.
2 days

The proposed rear conservatory at 39 Oak Field Road, Hereford, HR2 6SD represents a carefully considered and proportionate addition to the existing dwelling. The design achieves a sensitive balance between functionality, aesthetics, and environmental performance, ensuring that the extension enhances the property without detracting from the character of the surrounding residential context. The proposal makes efficient use of underutilized rear garden space, providing a versatile family living area that supports relaxation, social gatherings, and improved connectivity between indoor and outdoor environments. The chosen materials, finishes, and glazing are in keeping with the existing building fabric and have been selected to ensure visual harmony, energy efficiency, and long-term durability.
Technical specifications and structural plans.




Skip the confusion. Get a clear engineering plan and a fixed quote today.
Available for next-day site visits